ASME B16.5 Lap Joint Flange
Loose flanges, also known as slip-on flanges or mother-and-daughter flanges, are flanges that loosely fit over the flanges of containers or pipes.
Loose flange flanges can be manufactured by flanging, direct machining, or welding a ring onto the flange. They can be broadly divided into two types: slip-on flanges with a welding ring and weld neck flanges. Slip-on flanges are used with a matching flange ring, while weld neck flanges are used with a matching flange.
Loose flanges are generally used on pipelines. Loosening the bolts allows rotation of the pipes on both sides, and tightening them again facilitates easy assembly and disassembly of the pipeline. Advantages include no additional torque on the container or pipe when the flange deforms, ease of manufacturing, and the ability to use materials different from those of the container or pipe, saving on precious metals. Disadvantages include a larger flange thickness. They are suitable for applications where the container or pipe is lined with brittle materials but the pressure is not high.
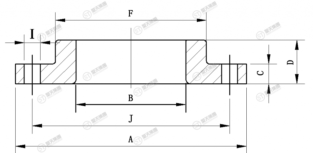
ASME B16.5 Lap Joint Flange Dimensions

ASME B16.5 Loose Flange Lap Joint Flange Class 150 LBS Dimensions
| NPS |
A |
B |
I |
Holes |
C |
D |
F |
Weight |
| 1/2″ |
89 |
22.9 |
15.7 |
4 |
11.2 |
15.7 |
30.2 |
0.45 |
| 3/4″ |
99 |
28.2 |
15.7 |
4 |
12.7 |
15.7 |
38.1 |
0.64 |
| 1″ |
108 |
35.1 |
15.7 |
4 |
14.2 |
17.5 |
49.3 |
0.85 |
| 1-1/4″ |
117 |
43.7 |
15.7 |
4 |
15.7 |
20.6 |
58.7 |
1.09 |
| 1-1/2″ |
127 |
50 |
15.7 |
4 |
17.5 |
22.4 |
65 |
1.42 |
| 2″ |
152 |
62.5 |
19.1 |
4 |
19.1 |
25.4 |
77.7 |
2.17 |
| 2-1/2″ |
178 |
75.4 |
19.1 |
4 |
22.4 |
28.4 |
90.4 |
3.48 |
| 3″ |
191 |
91.4 |
19.1 |
4 |
23.9 |
30.2 |
108 |
4.06 |
| 3-1/2″ |
216 |
104.1 |
19.1 |
8 |
23.9 |
31.8 |
122.2 |
5.05 |
| 4″ |
229 |
116.8 |
19.1 |
8 |
23.9 |
33.3 |
134.9 |
5.55 |
| 5″ |
254 |
144.5 |
22.4 |
8 |
23.9 |
36.6 |
163.6 |
6.3 |
| 6″ |
279 |
171.5 |
22.4 |
8 |
25.4 |
39.6 |
192 |
7.61 |
| 8″ |
343 |
222.3 |
22.4 |
8 |
28.4 |
44.5 |
246.1 |
12.35 |
| 10″ |
406 |
277.4 |
25.4 |
12 |
30.2 |
49.3 |
304.8 |
16.8 |
| 12″ |
483 |
328.2 |
25.4 |
12 |
31.8 |
55.6 |
365.3 |
26.88 |
| 14″ |
533 |
360.2 |
28.4 |
12 |
35.1 |
79.25 |
400.1 |
39.56 |
| 16″ |
597 |
411.2 |
28.4 |
16 |
36.6 |
87.4 |
457.2 |
51.87 |
| 18″ |
635 |
462.3 |
31.8 |
16 |
39.6 |
96.8 |
505 |
56.88 |
| 20″ |
699 |
514.4 |
31.8 |
20 |
42.9< /td>
|
103.1 |
558.8 |
71.58 |
| 24″ |
813 |
616 |
35.1 |
20 |
47.8 |
111.3 |
663.4 |
99.44 |
ASME B16.5 Loose Flange Lap Joint Flange Class 300 LBS Dimensions
| NPS |
A |
B |
I |
Holes |
C |
D |
F |
Weight |
| 1/2″ |
95 |
22.9 |
15.7 |
4 |
14.2 |
22.4 |
38.1 |
0.7 |
| 3/4″ |
117 |
28.2 |
19.1 |
4 |
15.7 |
25.4 |
47.8 |
1.2 |
| 1″ |
124 |
35.1 |
19.1 |
4 |
17.5 |
26.9 |
53.8 |
1.46 |
| 1-1/4″ |
133 |
43.7 |
19.1 |
4 |
19.1 |
26.9 |
63.5 |
1.79 |
| 1-1/2″ |
155 |
50 |
22.4 |
4 |
20.6 |
30.2 |
69.9 |
2.62 |
| 2″ |
165 |
62.5 |
19.1 |
8 |
22.1 |
33.3 |
84.1 |
3 |
| 2-1/2″ |
191 |
75.4 |
22.4 |
8 |
25.4 |
38.1 |
100.1 |
4.53 |
| 3″ |
210 |
91.4 |
22.4 |
8 |
28.4 |
42.9 |
117.3 |
6.04 |
| 3-1/2″ |
229 |
104.1 |
22.4 |
8 |
30.2 |
44.5 |
133.4 |
7.61 |
| 4″ |
254 |
116.8 |
22.4 |
8 |
31.8 |
47.8 |
146.1 |
9.95 |
| 5″ |
279 |
144.5 |
22.4 |
8 |
35.1 |
50.8 |
177.8 |
12.5 |
| 6″ |
318 |
171.5 |
22.4 |
12 |
36.6 |
52.3 |
206.2 |
16.09 |
| 8″ |
381 |
222.3 |
25.4 |
12 |
41.1 |
62 |
260.4 |
24.67 |
| 10″ |
445 |
277.4 |
28.4 |
16 |
47.8 |
95.3 |
320.5 |
39.42 |
| 12″ |
521 |
328.2 |
31.8 |
16 |
50.8 |
101.6 |
374.7 |
56.45 |
| 14″ |
584 |
360.2 |
31.8 |
20 |
53.8 |
111.3 |
425.5 |
81.57 |
| 16″ |
648 |
411.2 |
35.1 |
20 |
57.2 |
120.7 |
482.6 |
104.75 |
| 18″ |
711 |
462.3 |
35.1 |
24 |
60.5 |
130 |
533.4 |
128.15 |
| 20″ |
775 |
514.4 |
35.1 |
24 |
63.5 |
139.7 |
587.2 |
157.65 |
| 24″ |
914 |
616 |
41.1 |
24 |
69.9 |
152.4 |
701.5 |
236.32 |
ASME B16.5 Loose Flange Lap Joint Flange Class 400 LBS Dimensions
| NPS |
A |
B |
I |
Holes |
C |
D |
F |
Weight |
| 1/2″ |
95.3 |
22.9 |
15.7 |
4 |
14.2 |
22.4 |
38.1 |
0.71 |
| 3/4″ |
117.3 |
28.2 |
19.1 |
4 |
15.7 |
25.4 |
47.8 |
1.2 |
| 1″ |
124 |
35.1 |
19.1 |
4 |
17.5 |
26.9 |
53.8 |
1.46 |
| 1-1/4″ |
133.4 |
43.7 |
19.1 |
4 |
20.6 |
28.4 |
63.5 |
1.93 |
| 1-1/2″ |
155.4 |
50 |
22.4 |
4 |
22.4 |
31.75 |
69.85 |
2.85 |
| 2″ |
165.1 |
62.5 |
19.1 |
8 |
25.4 |
36.6 |
84.1 |
3.42 |
| 2-1/2″ |
190.5 |
75.4 |
22.4 |
8 |
28.4 |
41.1 |
100.1 |
5 |
| 3″ |
209.6 |
91.4 |
22.4 |
8 |
31.75 |
46 |
117.3 |
6.65 |
| 3-1/2″ |
228.6 |
104.1 |
25.4 |
8 |
35.1 |
49.3 |
133.4 |
8.46 |
| 4″ |
254 |
116.8 |
25.4 |
8 |
35.1 |
50.8 |
146.1 |
10.64 |
| 5″ |
279.4 |
144.5 |
25.4 |
8 |
38.1 |
53.8 |
177.8 |
13.26 |
| 6″ |
317.5 |
171.5 |
25.4 |
12 |
41.1 |
57.15 |
206.2 |
17.43 |
| 8″ |
381 |
222.3 |
28.4 |
12 |
47.8 |
68.3 |
260.4 |
27.69 |
| 10″ |
444.5 |
277.4 |
31.75 |
16 |
53.8 |
101.6 |
320.5 |
42.26 |
| 12″ |
520.7 |
328.2 |
35.1 |
16 |
57.15 |
108 |
374.7 |
60.88 |
| 14″ |
584.2 |
360.2 |
35.1 |
20 |
60.45 |
117.3 |
425.5 |
87.64 |
| 16″ |
647.7 |
411.2 |
38.1 |
20 |
63.5 |
127 |
482.6 |
111.66 |
| 18″ |
711.2 |
462.3 |
38.1 |
24 |
66.55 |
136.7 |
533.4 |
136.17 |
| 20″ |
774.7 |
514.4 |
41.1 |
24 |
69.85 |
146.1 |
587.2 |
164.75 |
| 24″ |
914.4 |
616 |
47.8 |
24 |
76.2 |
158.8 |
701.5 |
246.15 |
ASME B16.5 Loose Flange Lap Joint Flange Class 600 LBS Dimensions
| NPS |
A |
B |
I |
Holes |
C |
D |
F |
Weight |
| 1/2″ |
95 |
22.9 |
15.7 |
4 |
14.2 |
22.4 |
38.1 |
0.7 |
| 3/4″ |
117 |
28.2 |
19.1 |
4 |
15.7 |
25.4 |
47.8 |
1.2 |
| 1″ |
124 |
35.1 |
19.1 |
4 |
17.5 |
26.9 |
53.8 |
1.46 |
| 1-1/4″ |
133 |
43.7 |
19.1 |
4 |
20.6 |
28.4 |
63.5 |
1.92 |
| 1-1/2″ |
155 |
50 |
22.4 |
4 |
22.4 |
31.8 |
69.9 |
2.83 |
| 2″ |
165 |
62.5 |
19.1 |
8 |
25.4 |
36.6 |
84.1 |
3.41 |
| 2-1/2″ |
191 |
75.4 |
22.4 |
8 |
28.4 |
41.1 |
100.1 |
5.03 |
| 3″ |
210 |
91.4 |
22.4 |
8 |
31.8 |
46 |
117.3 |
6.69 |
| 3-1/2″ |
229 |
104.1 |
25.4 |
8 |
35.1 |
49.3 |
133.4 |
8.5 |
| 4″ |
273 |
116.8 |
25.4 |
8 |
38.1 |
53.8 |
152.4 |
14.02 |
| 5″ |
330 |
144.5 |
28.4 |
8 |
44.5 |
60.5 |
189 |
23.84 |
| 6″ |
356 |
171.5 |
28.4 |
12 |
47.8 |
66.5 |
222.3 |
28.14 |
| 8″ |
419 |
222.3 |
31.8 |
12 |
55.6 |
76.2 |
273.1 |
42.28 |
| 10″ |
508 |
277.4 |
35.1 |
16 |
63.5 |
111.3 |
342.9 |
75.16 |
| 12″ |
559 |
328.2 |
35.1 |
20 |
66.5 |
117.3 |
400.1 |
90.25 |
| 14″ |
603 |
360.2 |
38.1 |
20 |
69.9 |
127 |
431.8 |
108.24 |
| 16″ |
686 |
411.2 |
41.1 |
20 |
76.2 |
139.7 |
495.3 |
155.63 |
| 18″ |
743 |
462.3 |
44.5 |
20 |
82.6 |
152.4 |
546.1 |
188.49 |
| 20″ |
813 |
514.4 |
44.5 |
24 |
88.9 |
165.1 |
609.6 |
241.47 |
| 24″ |
940 |
616 |
50.8 |
24 |
101.6 |
184.2 |
717.6 |
346 |
ASME B16.5 Loose Flange Lap Joint Flange Class 900 LBS Dimensions
| NPS |
A |
B |
I |
Holes |
C |
D |
F |
Weight |
| 1/2″ |
120.6 |
22.9 |
22.3 |
4 |
22.3 |
31.7 |
38.1 |
1.71 |
| 3/4″ |
130 |
28.2 |
22.3 |
4 |
25.4 |
35 |
44.4 |
2.28 |
| 1″ |
149.3 |
35.1 |
25.4 |
4 |
28.4 |
41.1 |
52.3 |
3.35 |
| 1-1/4″ |
158.7 |
43.7 |
25.4 |
4 |
28.4 |
41.1 |
63.5 |
3.79 |
| 1-1/2″ |
177.8 |
50 |
28.4 |
4 |
31.7 |
44.4 |
69.85 |
5.25 |
| 2″ |
215.9 |
62.5 |
25.4 |
8 |
38.1 |
57.15 |
104.6 |
9.65 |
| 2-1/2″ |
244.3 |
75.4 |
28.4 |
8 |
41.1 |
63.5 |
123.9 |
13.38 |
| 3″ |
241.3 |
91.4 |
25.4 |
8 |
38.1 |
53.8 |
127 |
11.26 |
| 4″ |
292.1 |
116.8 |
31.7 |
8 |
44.4 |
69.85 |
158.7 |
19.23 |
| 5″ |
349.2 |
144.5 |
35 |
8 |
50.8 |
79.25 |
190.5 |
31.29 |
| 6″ |
381 |
171.5 |
31.7 |
12 |
55.6 |
85.8 |
234.9 |
40.34 |
| 8″ |
469.9 |
222.3 |
38.1 |
12 |
63.5 |
114.3 |
298.4 |
72.69 |
| 10″ |
546.1 |
277.4 |
38.1 |
16 |
69.85 |
127 |
368.3 |
105.97 |
| 12″ |
609.6 |
328.2 |
38.1 |
20 |
79.25 |
142.7 |
419.1 |
141.33 |
| 14″ |
641.3 |
360.2 |
41.1 |
20 |
85.8 |
155.4 |
450.8 |
162.58 |
| 16″ |
704.8 |
411.2 |
44.4 |
20 |
88.9 |
165.1 |
508 |
199.78 |
| 18″ |
787.4 |
462.3 |
50.8 |
20 |
101.6 |
190.5 |
565.1 |
280.05 |
| 20″ |
857.2 |
514.4 |
53.8 |
20 |
107.9 |
209.5 |
622.3 |
351.11 |
| 24″ |
1041.4 |
616 |
66.55 |
20 |
139.7 |
266.7 |
749.3 |
673.48 |
ASME B16.5 Loose Flange Lap Joint Flange Class 1500 LBS Dimensions
| NPS |
A |
B |
I |
Holes |
C |
D |
F |
Weight |
| 1/2″ |
120.6 |
22.9 |
22.3 |
4 |
22.3 |
31.7 |
38.1 |
1.71 |
| 3/4″ |
130 |
28.2 |
22.3 |
4 |
25.4 |
35 |
44.4 |
2.28 |
| 1″ |
149.3 |
35.1 |
25.4 |
4 |
28.4 |
41.1 |
52.3 |
3.35 |
| 1-1/4″ |
158.7 |
43.7 |
25.4 |
4 |
28.4 |
41.1 |
63.5 |
3.79 |
| 1-1/2″ |
177.8 |
50 |
28.4 |
4 |
31.7 |
44.4 |
69.85 |
5.25 |
| 2″ |
215.9 |
62.5 |
25.4 |
8 |
38.1 |
57.15 |
104.6 |
9.65 |
| 2-1/2″ |
244.3 |
75.4 |
28.4 |
8 |
41.1 |
63.5 |
123.9 |
13.38 |
| 3″ |
266.7 |
91.4 |
31.7 |
8 |
47.7 |
73.15 |
133.3 |
17.57 |
| 4″ |
311.1 |
116.8 |
35 |
8 |
53.8 |
90.4 |
162 |
27.17 |
| 5″ |
374.6 |
144.5 |
41.1 |
8 |
73.15 |
104.6 |
196.8 |
51.24 |
| 6″ |
399.7 |
171.5 |
38.1 |
12 |
82.5 |
119.1 |
228.6 |
62.6 |
| 8″ |
482.6 |
222.3 |
44.4 |
12 |
91.9 |
142.7 |
292.1 |
101.8 |
| 10″ |
584.2 |
277.4 |
50.8 |
12 |
107.9 |
177.8 |
368.3 |
180.54 |
| 12″ |
673.1 |
328.2 |
53.8 |
16 |
123.9 |
218.9 |
450.8 |
284.37 |
| 14″ |
749.3 |
360.2 |
60.45 |
16 |
133.3 |
241.3 |
495.3 |
383.7 |
| 16″ |
825.5 |
411.2 |
66.55 |
16 |
146 |
260.3 |
552.4 |
493.3 |
| 18″ |
914.4 |
462.3 |
73.15 |
16 |
162 |
276.3 |
596.9 |
636.61 |
| 20″ |
984.2 |
514.4 |
79.25 |
16 |
177.8 |
292.1 |
641.3 |
764.97 |
| 24″ |
1168.4 |
616 |
91.9 |
16 |
203.2 |
330.2 |
762 |
1223.13 |
ASME B16.5 Loose Flange Lap Joint Flange Class 2500 LBS Dimensions
| NPS |
A |
B |
I |
Holes |
C |
D |
F |
Weight |
| 1/2″ |
133.4 |
22.9 |
22.4 |
4 |
30.2 |
39.6 |
42.9 |
2.92 |
| 3/4″ |
139.7 |
28.2 |
22.4 |
4 |
31.75 |
42.9 |
50.8 |
3.39 |
| 1″ |
158.8 |
35.1 |
25.4 |
4 |
35.1 |
47.8 |
57.15 |
4.79 |
| 1-1/4″ |
184.2 |
43.7 |
28.4 |
4 |
38.1 |
52.3 |
73.15 |
7.06 |